| Sign In | Join Free | My gimpguru.org |
|
Brand Name : Air Giant
Model Number : CMJS10-1-AG, CMJS18-2-AG
Certification : CAL,CMA,CNAS,ILAC-MRA,CCC
Place of Origin : China
MOQ : 1 set
Price : negotiation
Payment Terms : L/C, D/P, T/T, Western Union, Paypal, Credit card
Supply Ability : 1000 sets per month
Delivery Time : 10-15 working days
Packaging Details : Plywood outer box with bubble bag or paper
Maximum working pressure of the device : 1Mpa
Operating temperature : 0-50 ℃
Drive gas name : Nitrogen
Filling pressure of driving bottle : 6Mpa
Fire extinguishing agent name : Edible oil specific fire extinguishing agent
Reagent filling capacity : 12L (single bottle group)/12L*2 (double bottle group)
Effective spraying time : ≥ 30s
Shelf life of the drug : 3 years
Temperature sensor nominal operating temperature : 183 ℃
Extinguishing type : Edible oil fires
Intelligent Electromagnetic Kitchen Automatic Fire Extinguishing System
Description of Kitchen Fire Suprresion System
There are 3 Activation Methods of our kitchen fire suppression system:
1. Automatic Activation Method:
1.1 Thermal Detection: When a fire occurs in the kitchen oil pot, the heat generated by the flames will cause the temperature inside the hood to rise. When the temperature reaches the preset thermal threshold of the fire suppression system (usually 183°C to 185°C), the thermal detector will automatically disconnect, triggering the fire suppression system to activate automatically.
1.2 Release of Fire Extinguishing Agent: Once the fire suppression system is activated, it will release fire extinguishing agents (such as dry powder, water-based agents, etc.) through atomizing nozzles, spraying them onto the oil pot and inside the hood. These agents will either chemically react with the burning oil or physically isolate it, forming a covering layer to cut off the air supply and extinguish the flames.
1.3 Cooling Down: After the fire suppression system sprays the extinguishing agent, it typically activates a water flow valve automatically, spraying water onto the oil pot and exhaust hood to cool them down and prevent re-ignition. The cooling water is sprayed for about two minutes before the system automatically shuts off the water.
2. Manual Activation Method
2.1 Fire Detection: In the early stages of a fire or if the automatic activation system fails, on-site personnel can manually activate the fire suppression system.
2.2 Operating the Manual Activation Device: Follow the instructions on the device to remove the safety pin, pull out the ring, or press the button, causing the drive valve to activate and release the fire extinguishing agent from the high-pressure cylinder.
2.3 Observing the Extinguishing Effect: After manually activating the fire suppression system, observe whether the fire source is completely extinguished and take necessary follow-up measures.
3. Mechanical Emergency Activation Method
3.1 Confirming Automatic and Manual Activation Failure: When both automatic and manual activation methods fail to start the device normally, the mechanical emergency activation method can be used.
3.2 Operating the Mechanical Drive Valve: Manually operate the drive valve handle to open the mechanical drive valve, releasing the fire extinguishing agent to extinguish the fire.
Components of kitchen Fire Suprresion System
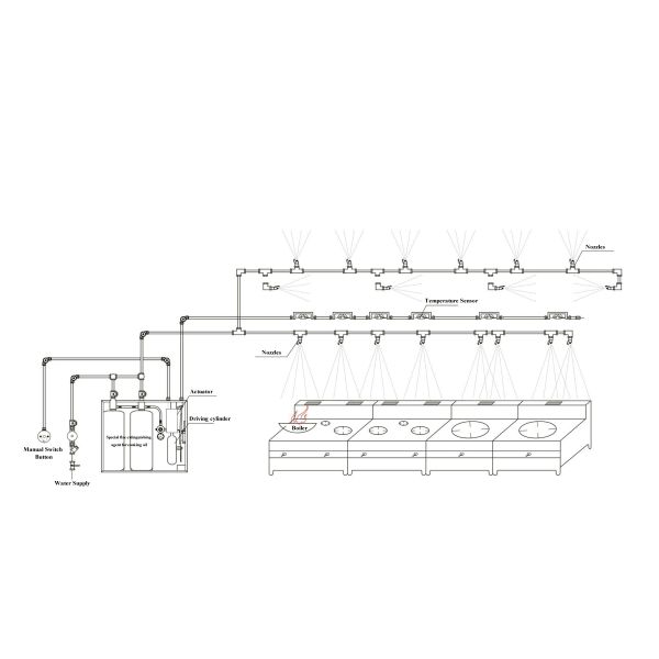
The kitchen equipment fire extinguishing device is a complete set of devices installed in high humidity and heat environments such as industrial kitchens, commercial kitchens, and civilian kitchens, consisting of fire extinguishing agent storage container components, driving gas storage container components, pipelines, nozzles, valves and their driving devices, temperature sensors, control devices, gas valves, etc.

Working principle of kitchen Fire Suprresion System

Advantage of kitchen Fire Suprresion System
**Preventing Re-ignition
**Environmentally Friendly and Safe
**Strong Applicability
**High-Efficiency Fire Suppression
Application of kitchen Fire Suprresion System

Packages of kitchen Fire Suprresion System
We pack products with first polyfoam and then the wooden cases. Once products are too big or customers require a pallet for products, we will make products a pallet. The following pictures are the common packing of products:

|
|
Intelligent Electromagnetic Kitchen Automatic Fire Extinguishing System Images |